НР
+7 (910) 643-12-12Работаю
ДомСтроится

Дом

Дом в Рыбновской слободе Рыбное

Рыбновская слобода

7 850 000 ₽

Площадь дома

112 м²

Площадь участка

8 сот.

Внутренняя отделка

Да

Газ Вода Электричество

Описание

Готовность дома в Мае 2026 года.
Дом, создается для комфортного круглогодичного проживания семьи.
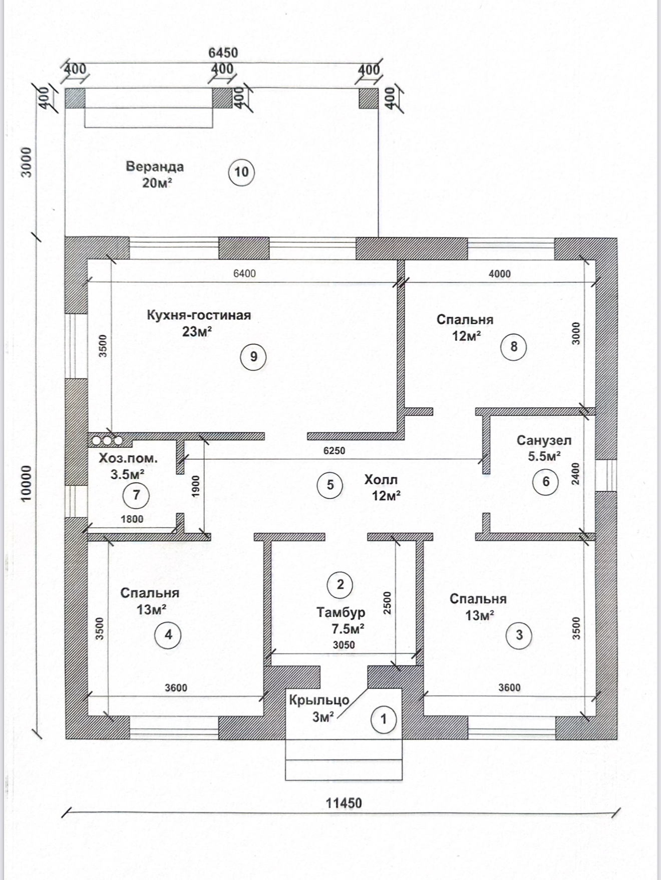
В доме будет 3 комнаты, кухня гостинная с выходом на веранду, санузел.

Дом уже сейчас можно забронировать и определить его комплектацию к моменту передачи ключей. 

ПОДХОДИТ ко всем льготным ипотечным программам:
Семейная ипотека
IT- Ипотека
Военная ипотека
Сельская ипотека
В доме 3 комнаты, кухня гостинная с выходом на веранду, санузел.


Участок:
Участок ровный, правильной формы, площадь 8 соток.

Дом:
Стены - газосиликатные блоки, облицованные кирпичом.
Фундамент - монолитный, железобетонный
Крыша - утеплена и покрыта мягкой черепицей.
Окна - двухкамерный стеклопакет
Входная металлическая дверь
Коммуникации:
Скважина
Электричество подведено к дому 15кВт
Септик
Газ (индивидуальное отопление)

Возможно выполнение любых работ, включая чистовую отделку, все подробности при личной встрече.

Цена указана при оплате по ипотеке, при покупке за наличные возможна дополнительная скидка.
Принимаются любые варианты расчетов:

• Наличный расчет
• Ипотека
• Материнский капитал
• Военные сертификаты

В указанную цену входит: ДОМ+УЧАСТОК+ГАЗ+СВЕТ+ВОДА+СЕПТИК

Помощь с получением одобрения по ипотеке

Запись на показ по телефону. Отвечу на все возникшие вопросы.

Узнать подробнее о Дом в Рыбновской слободе Рыбное

Заполните форму и мы свяжемся с вами в течение 15 минут

Оставить заявку