ЖК «Бережно» — современный жилой комплекс бизнес-класса в Рязани от «Северная Компания». Проект расположен на улице Полевой и включает 470 квартир разных форматов: от функциональных однокомнатных до просторных трехкомнатных планировок. Дом выполнен в монолитно-кирпичной технологии, состоит из 4 подъездов и 24 этажей, с нежилым первым этажом, высокими потолками от 3 до 3,6 м и собственным паркингом на 80 машино-мест с дополнительным гостевым паркингом.
Продажа квартир через счета эскроу. Срок ввода комплекса в эксплуатацию — III квартал 2029 года, передача ключей запланирована до 31 марта 2030 года.
ЖК «Бережно» подойдет тем, кто ищет новую квартиру бизнес-класса в Рязани для комфортной жизни и выгодного вложения.
1/4
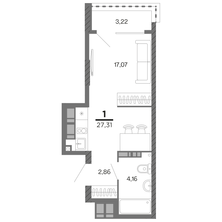
1-комнатная, 27.31 м²
Жилой комплекс «Бережно»Сдача: 3 кв. 2029
4 819 312₽
176 467 ₽ за м²
1
комната
27.31 м²
площадь
10/24
этаж

Что входит в предложение
- Помощь в оформлении ипотеки и подборе программы
- Проверка условий покупки и сопровождение сделки
- Возможность бронирования после консультации
- Бесплатная консультация по выбору квартиры
Похожие варианты
Ещё несколько релевантных предложений в каталоге
Рекомендуемые квартиры
Другие жилые комплексы
Узнать подробнее и забронировать
Заполните форму и мы свяжемся с вами в течение 15 минут