Как сердце является центром жизни и эмоций для человека, так и дом становится центральным местом безопасности и комфорта. Жилой комплекс «Метропарк» - ваш уютный уголок на берегу реки! Мы предлагаем своим жителям не только прекрасные виды из окон, но и развитую инфраструктуру.
1/7
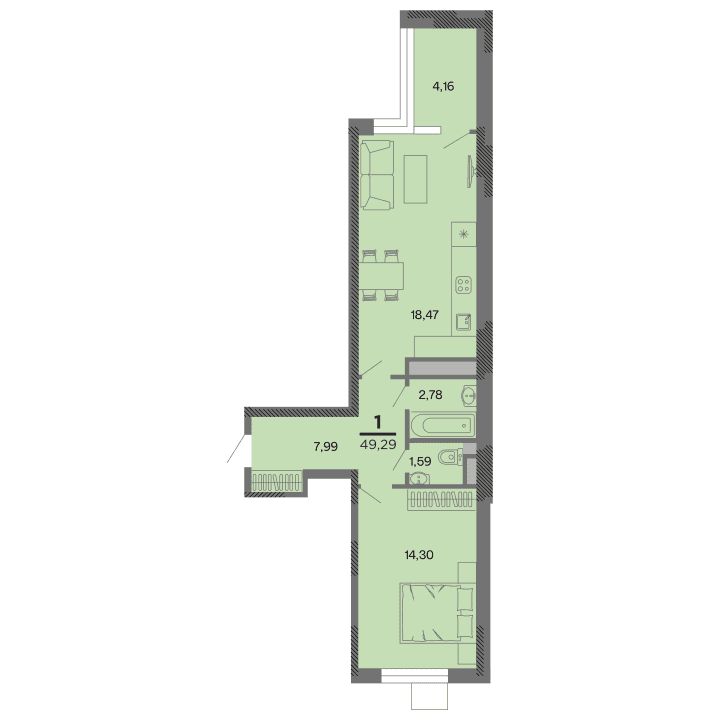
1-комнатная, 49.29 м²
ЖК Метропарк 5Сдача: 3 кв. 2028
6 510 375₽
132 083 ₽ за м²
1
комната
49.29 м²
площадь
5/25
этаж

Что входит в предложение
- Помощь в оформлении ипотеки и подборе программы
- Проверка условий покупки и сопровождение сделки
- Возможность бронирования после консультации
- Бесплатная консультация по выбору квартиры
Похожие варианты
Ещё несколько релевантных предложений в каталоге
Рекомендуемые квартиры
Другие жилые комплексы
Узнать подробнее и забронировать
Заполните форму и мы свяжемся с вами в течение 15 минут